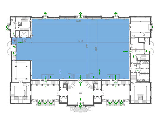
Planta

Capacidades

Equipamentos e Serviços

Galeria

Mapa de Localização

Home

Apresentação

Pátio da Galé

Sala do Risco

Pavilhão Carlos Lopes

Contactos